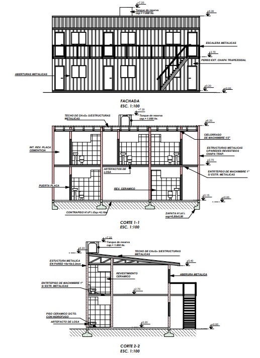
Descripción
El Steel Frame es un sistema constructivo en seco que utiliza una estructura (o entramado) de perfiles de acero galvanizado para construir edificios, reemplazando los métodos tradicionales de hormigón y ladrillos. Este sistema es ligero pero resistente, versátil y eficiente energéticamente, ya que permite integrar fácilmente sistemas de aislamiento térmico y acústico. Sus principales ventajas incluyen una ejecución más rápida, menor peso estructural, resistencia a sismos y mayor durabilidad.
Componentes del sistema:
Estructura de perfiles de acero galvanizado: Son los componentes portantes que forman el esqueleto del edificio.
Paneles de cerramiento: Se instalan placas de diferentes materiales (como placas de yeso o de OSB) a los perfiles metálicos.
Materiales aislantes: Se colocan en el interior de los paneles para proporcionar aislamiento térmico y acústico, con materiales como la lana de vidrio.
Capas de terminación: Permiten el revestimiento exterior e interior de las paredes y techos.
Ventajas del Steel Frame:
Rapidez y eficiencia:
Permite construir una vivienda en una fracción del tiempo comparado con los sistemas tradicionales.
Eficiencia energética:
Las capas de aislación que se pueden integrar reducen considerablemente el consumo de energía para calefacción y refrigeración.
Sustentabilidad:
El acero es un material reciclable, y la construcción genera menos residuos.
Resistencia:
Su estructura ligera reduce las cargas sísmicas, y el acero es un material no inflamable, lo que aumenta la seguridad contra incendios.
Versatilidad:
Permite diseñar y construir una gran variedad de proyectos arquitectónicos con diferentes acabados y revestimientos.
Durabilidad:
El acero galvanizado es resistente a la corrosión y a la acción de organismos como termitas y hongos.
Aplicaciones:
Se adapta a todo tipo de proyectos, desde viviendas y ampliaciones hasta grandes naves industriales.
Es especialmente útil en zonas con riesgo sísmico debido a su ligereza y flexibilidad estructural.







